Project notes
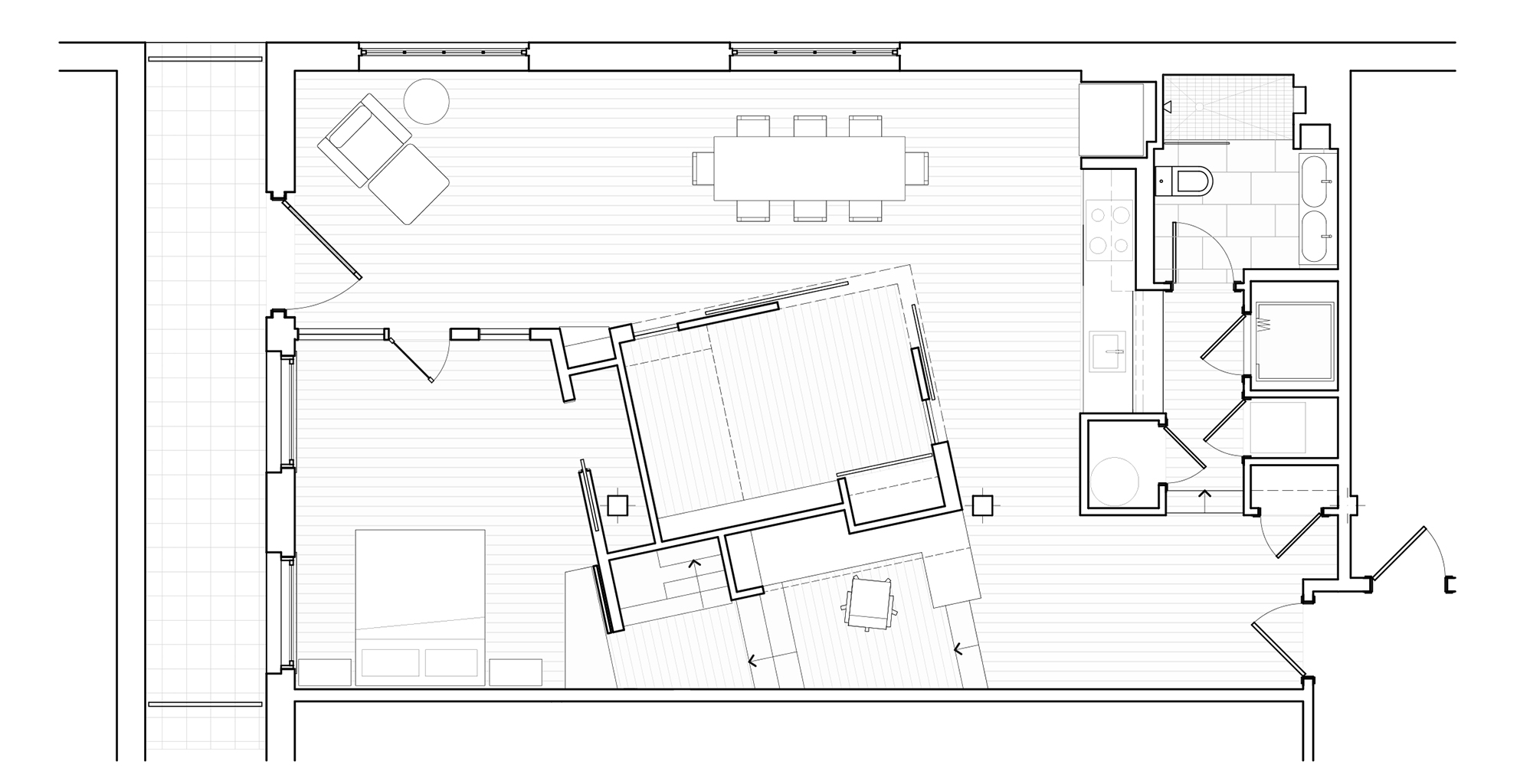
Portland, OR The project’s goal was straightforward: to create a new bedroom for a young girl and a flexible, private space for her grandmother. The design revolves around the grandmother’s room, which is detached from the existing walls and positioned beneath the loft’s high ceiling. The surrounding spaces are thoughtfully filled with custom casework and stairs, forming a second bedroom, a cozy library and workspace, and a loft area for storage and play.